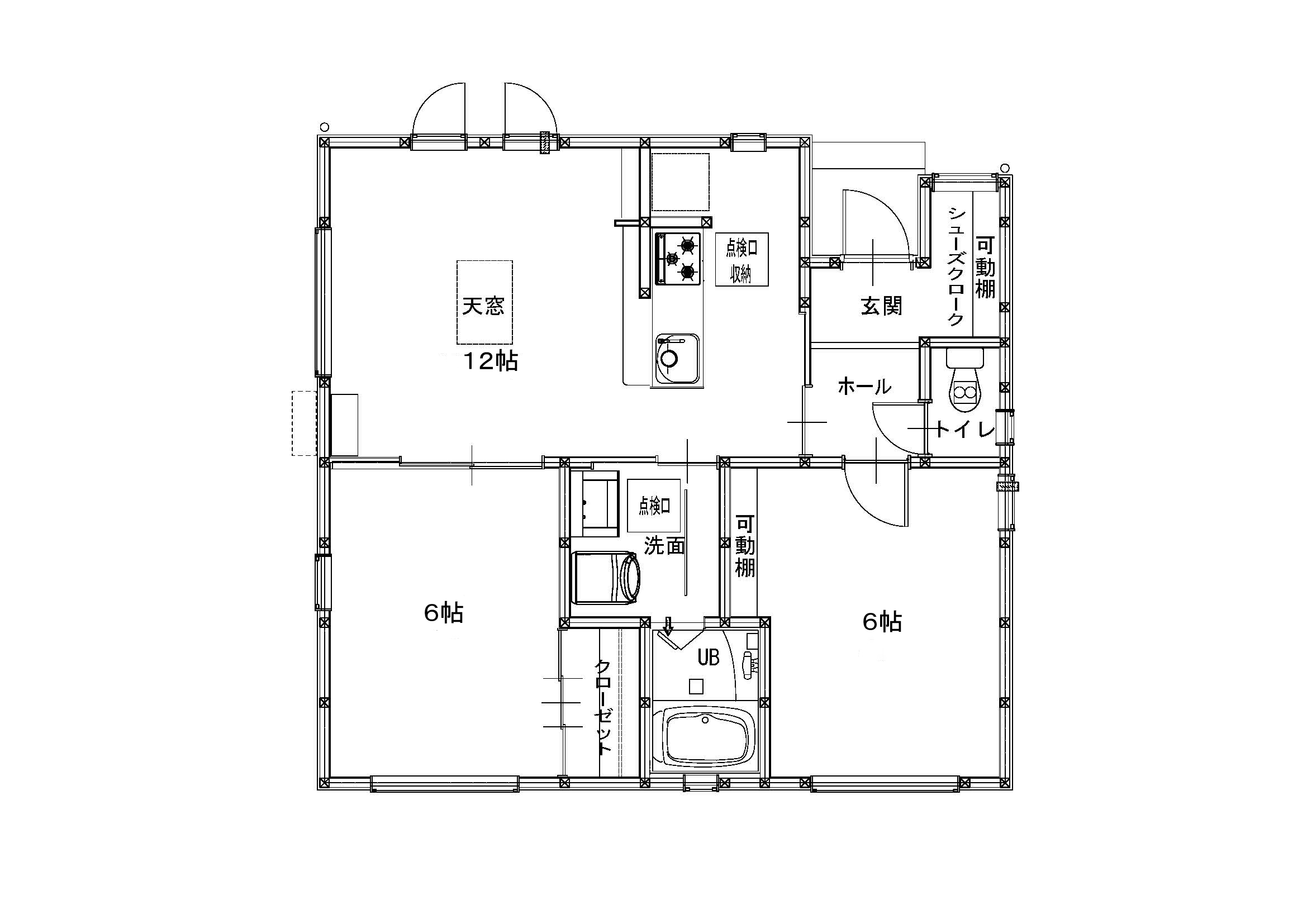
53㎡ / 2LDK
近鉄名古屋線 「霞ヶ浦駅」 徒歩4分
完成時期(築年月)
2025年11月
私道負担・道路
無・北側 m
土地面積
172.24㎡
所在階/構造
平家 / 木造ガルバリウム鋼板葺
販売戸数
1戸


Gallery
ギャラリー
Feature
特徴
See the birth of a new “value”!


・宅配ボックス設置
不在でも荷物を受取可能。ネットショッピングを良く利用したい方におススメ
・スマートロックシステム玄関ドア設置
スマートフォンやカードキーなどライフスタイルに合わせて選択が可能です
・ガス衣類乾燥機 乾太君設置
洗濯物を干す時間を省けて、違う時間に使えます
・駐車場 2台並列駐車可能です